Λίγα λόγια για το έργο
Η συγκεκριμένη ισόγεια κατοικία είναι κατασκευασμένη με την μέθοδο των ΜΟΝΟΜΠΛΟΚ, πρόκειται για ΒΑΡΕΩΣ ΤΥΠΟΥ ΠΡΟΚΑΤΑΣΚΕΥΗ από οπλισμένο σκυρόδεμα και εξωτερική μόνωση – ΘΕΡΜΟΠΡΟΣΟΨΗ σύμφωνα με τον Ελληνικό Κανονισμό Σκυροδέματος, τον Ελληνικό Αντισεισμικό Κανονισμό και τον Ενεργειακό Κανονισμό ΚΕΝΑΚ.
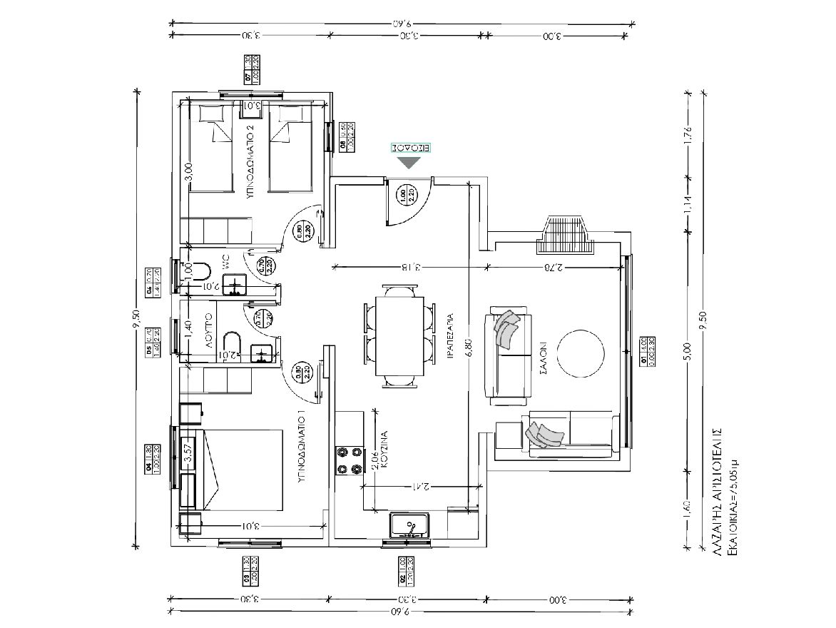
Η κατοικία ως προς την εσωτερική διαρρύθμισή της διαθέτει ΔΥΟ (2) υπνοδωμάτια, ΕΝΑ (1) κυρίως μπάνιο και ΕΝΑ (1) WC, ΕΝΑ (1) ενιαίο χώρο κουζίνα με τραπεζαρία και ΕΝΑ (1) σαλόνι.
Τα αποτελέσματα
Η προκατ κατοικία παραδόθηκε ολοκληρωμένη με πλακάκια, ντουλάπια στην κουζίνα, ντουλάπες στο υπνοδωμάτιο, είδη υγιεινής, κουφώματα αλουμινίου EXALCO, διπλά τζάμια, ελαιοχρωματισμούς, πλήρη ηλεκτρολογική και υδραυλική εγκατάσταση.
Η εταιρεία μας με το εξειδικευμένο προσωπικό και τα αντίστοιχα μηχανήματα που διαθέτει πραγματοποίησε με απόλυτη επιτυχία την μεταφορά και τοποθέτηση των κυψελών παρά τον βαθμό δυσκολίας λόγω της στενότητας της εισόδου και της κλίσης του οικοπέδου.
Όλα τα επιμέρους υλικά στο εσωτερικό επιλέχθηκαν από τον αγοραστή μέσα από μια μεγάλη γκάμα σχεδίων που διαθέτει η εταιρεία, χαρακτηρίζοντας μοναδική την κάθε μια κατοικία, όπως μοναδικός είναι και ο κάθε πελάτης.





































