Πλήρες πακέτο Mελέτης, αδειοδότησης & Κατασκευής Νέου έργου

Υποστήριξη για την σωστή επιλογή του οικοπέδου

Μελέτη από επαγγελματίες του χώρου για ένα λειτουργικό κτίσμα ώστε να καλύπτει τις απαιτήσεις του σήμερα αλλά κυρίως τις ανάγκες του αύριο.

Πρωτότυπος αρχιτεκτονικός σχεδιασμός – Βιοκλιματικός σχεδιασμός

Χαμηλό ενεργειακό αποτύπωμα – Μικρή ενεργειακή κατανάλωση

Κατασκευάζουμε προκατασκευασμένα κτίρια υψηλού αισθητικού αποτελέσματος, προσαρμοσμένα στην αισθητική και απαιτήσεις του χρήστη

Επιμονή στη λεπτομέρεια και στο τελικό φινίρισμα

«Κλειστό» προϋπολογισμό για : αγορά οικοπέδου , ανέγερση του κτιρίου , επιλογή των υλικών

Αναλυτικό προϋπολογισμό και πίνακα πληρωμών ανά φάση εργασιών

Αυστηρή τήρηση χρονικού προγραμματισμού αποπεράτωσης του έργου

2ετή εγγύηση τεχνικής φύσεως μετά την παράδοση

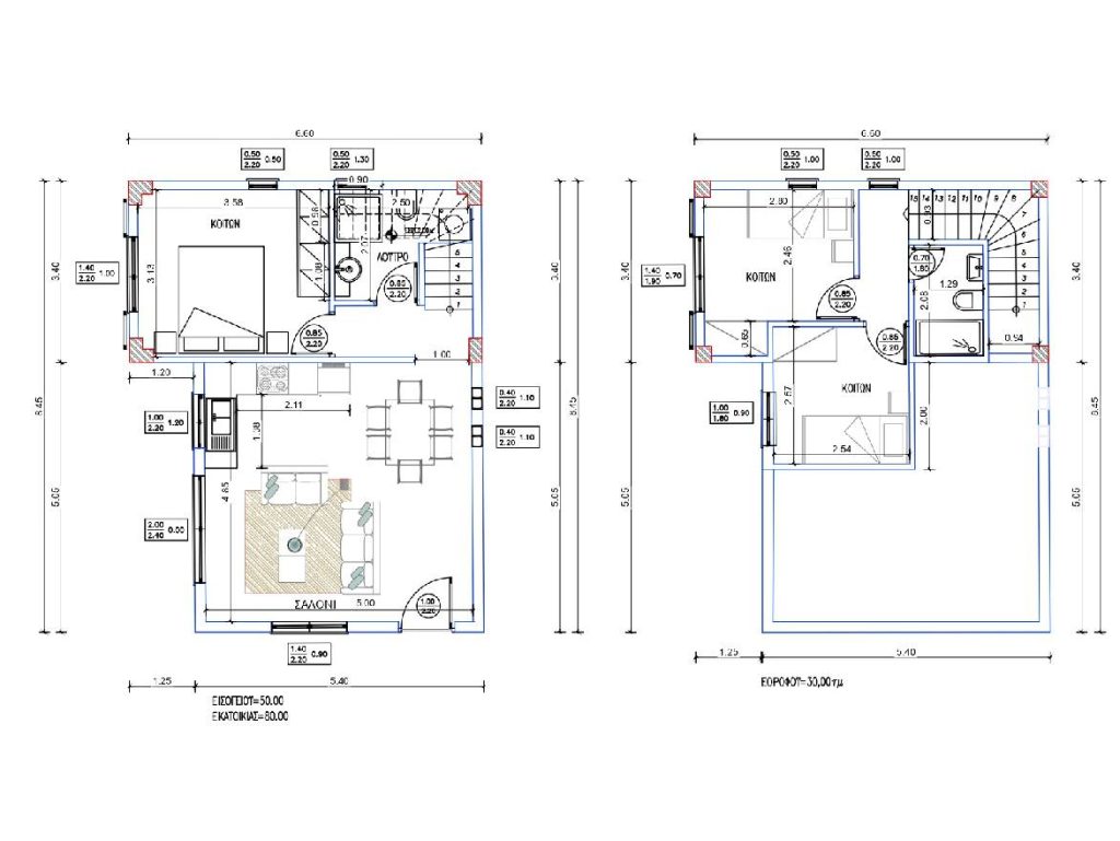
Η εταιρεία παρέχει στους πελάτες της ολοκληρωμένες υπηρεσίες σε όλα τα στάδια υλοποίησης του έργου Το μόνιμο σχεδιαστικό της τμήμα αναλαμβάνει να σχεδιάσει και να προτείνει ιδέες και λύσεις για κάθε έργο.
Οι συνεργάτες της εταιρείας αρχιτέκτονες και πολιτικοί μηχανικοί αναλαμβάνουν τόσο την προμελέτη του έργου σας με κατασκευή 3D σχεδίων του έργου σας όπου μπορείτε να δείτε φωτορεαλιστικα την κατοικία σας τόσο ως προς το εξωτερικό της όσο και τους εσωτερικούς της χώρους αλλά και την διαμόρφωση του περιβάλλοντος χώρου με προτάσεις που αναδεικνύουν τα θετικά στοιχεία του χώρου.
Επιπλέον η εταιρεία ΚΑΛΛΕΡΓΗΣ με το δίκτυο των συνεργατών της πολίτικων μηχανικών σε όλη την Ελλάδα, αναλαμβάνει τον πλήρη φάκελο των μελετών και την υποβολή τους για την έκδοση της οικοδομικής αδείας .
Με τις παραπάνω υπηρεσίες ο πελάτης μας γνωρίζει από τα σχέδια την τελική μορφή της κατοικίας του πριν αυτή ακόμα κατασκευαστεί και στο επίπεδο της οικοδομικής αδείας είναι διασφαλισμένη η πορεία των μελετών και της υποβολής τους.




Έργα μας με πήρες πακέτο μελέτης & Κατασκευής


Αγγελίες Ακινήτων
Στην εταιρεία Καλλέργης υπάρχει ειδικό τμήμα που ασχολείται αποκλειστικά με τις αγοροπωλησίες ακινήτων. Έμπειροι συνεργάτες μας θα σας βοηθήσουν να βρείτε το ακίνητο που σας ταιριάζει και μαζί θα ολοκληρώσουμε το έργο.
















































