Λίγα λόγια για το έργο
Η προκατ κατοικία είναι κατασκευασμένη από οπλισμένο μπετόν με την μέθοδο των ΜΟΝΟΜΠΛΟΚ. Πρόκειται για ΒΑΡΕΩΣ ΤΥΠΟΥ ΠΡΟΚΑΤΑΣΚΕΥΗ από οπλισμένο σκυρόδεμα και εξωτερική μόνωση σύμφωνα με τον Ελληνικό Αντισεισμικό Κανονισμό και τον Ενεργειακό Κανονισμό ΚΕΝΑΚ.
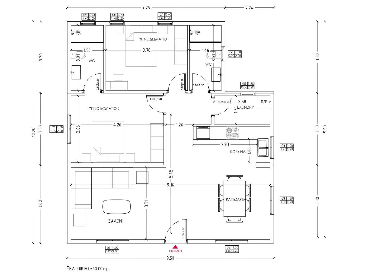
Η κατοικία ως προς την εσωτερική διαρρύθμισή της διαθέτει ΔΥΟ (2) υπνοδωμάτια, ΔΥΟ (2) μπάνια και ΕΝΑΝ (1) ενιαίο χώρο με κουζίνα, τραπεζαρία, σαλόνι και ΕΝΑ (1) πλυσταριό.
Η προκατ κατοικία παραδόθηκε ολοκληρωμένη με πλακάκια, ντουλάπια στην κουζίνα, ντουλάπες στο υπνοδωμάτιο, είδη υγιεινής, κουφώματα αλουμινίου EXALCO, διπλά τζάμια, ελαιοχρωματισμούς, πλήρη ηλεκτρολογική και υδραυλική εγκατάσταση.
Τα αποτελέσματα
Το συνεργείο μας ανέλαβε την κατασκευή της υπερυψωμένης θεμελίωσης της κατοικίας σύμφωνα με τις μελέτες του αρμόδιου μηχανικού, καλύπτοντας έτσι τις ανάγκες των ιδιοκτήτων.
Η διαμόρφωση του περιβάλλοντα χώρου εκτελέστηκε από εξειδικευμένη ομάδα της εταιρείας μας έχοντας σαν αποτέλεσμα την απόλυτη ικανοποίηση των αναγκών των ιδιοκτήτων και την εναρμόνιση με το φυσικό περιβάλλον.



































